















Area
393 м2
Bedrooms
4
Bathrooms
5
Villa in Dalmatia. City - Split
Supermodern villa with amazing advanced architecture that will leave you in awe!
 Le Corbusier would be delighted with this villa!
 The villa is being built in Castel Stafilic near Split, at the end of a dead end road, surrounded by fields and peaceful nature, only 400 m from the city center, the sea and the beautiful beaches of Castella.
Total area of the house: 214 m2
 Clean area of the house: 176 m2 (closed) + 217 m2 terrace
 Total area of the villa: 393 m2
 Land plot 642 sq.m.
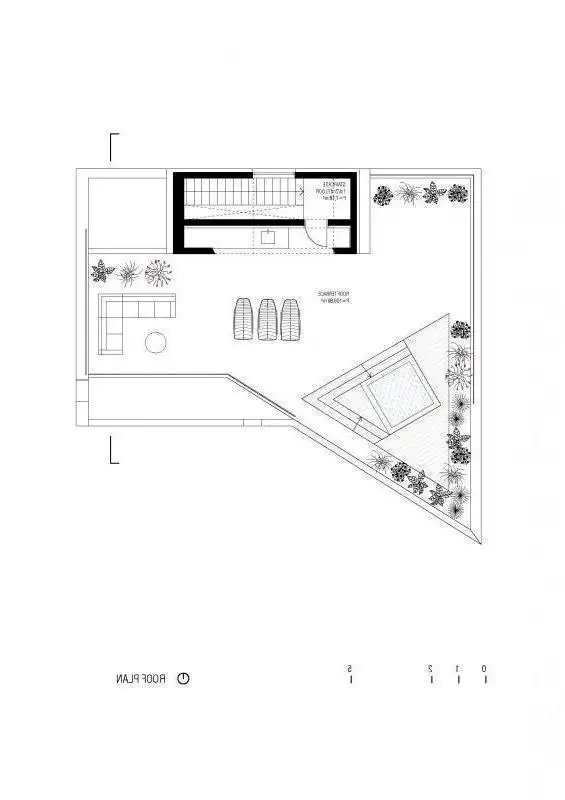
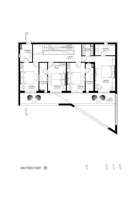
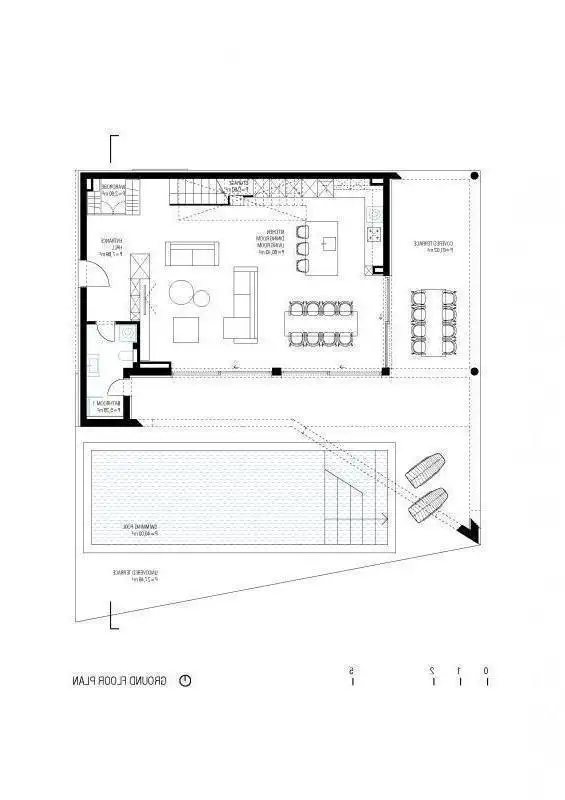
The house consists of three levels.
 First floor: hallway, dressing room, bathroom, living room with kitchen and dining room, which are connected by a glass wall with a spacious covered terrace and swimming pool.
 1 floor: corridor, master bedroom with dressing room and bathroom, three bedrooms, three bathrooms, loggia.
 It is also possible to have three bathrooms upstairs and one larger room. The upper level is the best part of the villa - a roof terrace with Jacuzzi, sun loungers and a beautiful view. The perfect place to relax and spend the evening admiring the sunset.
The house is currently concrete, with windows. You can participate in the selection of interior details, style, color, furniture.
 The cost of a fully finished and furnished house will be 890,000 euros. It can be completed in 2022.
When buying real estate in Croatia, the buyer bears additional costs of about 7% of the sale price: property transfer tax (3% of the value of the property), agency commission (3% + VAT), lawyer fee (about 1%), notarial fee, court fee, payment for the services of a certified translator. The signing of the Agency Agreement (by 3% of the commission + VAT) precedes the display of objects.
Services and facilities
Additional details
Property type
Residential Properties
Object type
Villa
Price
1 177 028 $
Land area
642
Characteristics
Contact person
Comment

390 м²
For sale is a luxury villa under construction, located in a quiet and elevated place above Split, in the picturesque...

120 м²
Elegant and modernly furnished one-storey villa with a swimming pool in a quiet place above the main road, in Kastel...
Our managers will help you choose a property
Liliya
International Real Estate Consultant
