




Area
110 м2
Bedrooms
2
Bathrooms
1
2-Bedroom Apartment for Sale | FairView Vlas, Sveti Vlas
🌊 2-Bedroom Apartment for Sale | FairView Vlas, Sveti Vlas
Modern Living 400 m from the Beach | Panoramic Balcony | New Elite Development
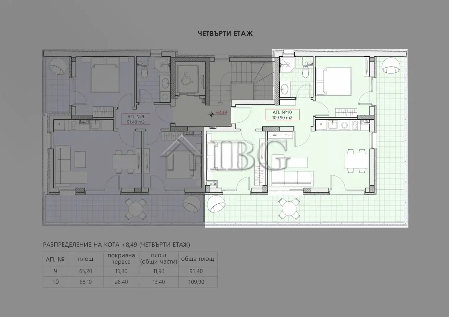
IBG Real Estates is pleased to offer this spacious 2-bedroom apartment with a large wrap-around balcony, located on the 4th floor in the FairView Vlas complex – an elegant new building just 400 meters from the beach in Sveti Vlas. Designed for year-round coastal living, FairView Vlas offers a boutique setting with only 10 apartments, stylish architecture, and a convenient location close to all amenities.
🏠 Apartment Details:
Total area: 109.90 sq.m.
Floor: 4th
Layout: Entrance hall, spacious living room with kitchen and dining area, 2 bedrooms, 1 bathroom with toilet, and a large balcony surrounding the entire apartment
Optional: Apartment can be delivered fully furnished and equipped for an additional cost
🏗️ Building Highlights:
Boutique building with only 10 apartments
Completion date: March 2027
Parking spaces: 10 total – can be purchased separately
Ideal for permanent living, holidays, or investment
💰 Payment Plan:
€2,000 reservation deposit
Up to 40% upon signing the Preliminary Contract
30% in January 2026
30% upon registration of ownership
📍 Location Distances:
🚌 50 m to the bus stop
🏟️ 250 m to the stadium
🏖️ 400 m to the beach
🛒 450 m to the supermarket
🏙️ 600 m to the resort center
🏫 700 m to the school
⚓ 1.5 km to Marina Dinevi Yacht Port
FairView Vlas is a rare opportunity to own a stylish apartment near the sea in a quiet and well-connected area. Whether you’re looking for a seaside home or a smart rental investment – this property ticks all the boxes.
📩 Contact us today for floorplans, pricing options, or to schedule a viewing!
Services and facilities
Additional details
Property type
Residential Properties
Object type
Flat
Price
167 051 $
Characteristics
Contact person
Comment

34
Studio Apartment for Sale | Sol e Mar Complex, Sunny BeachWe are pleased to offer this well-located studio apartment...

32
Studio with Balcony for Sale | Sunny Day 6, Near Sunny BeachIBG Real Estates is pleased to offer this...
Our managers will help you choose a property
Liliya
International Real Estate Consultant
