
























Area
500 м2
Bedrooms
4
Bathrooms
4
Villa in Istria. City - Labin
A luxurious and spacious modern villa just 5 km from the sea near Rabats (Labin) is now available for sale, located on a large plot of 6,400 m2 in a quiet and green environment on the south-east coast of Istria.
Located in an area where undulating green hills meet the Adriatic Sea, this region combines natural charm and cultural heritage. Here are the cities of Labin and Rabats - similar in size, but different in character. Labine, located on a hill at an altitude of 320 meters above sea level, just five minutes from the snow-white pebble beaches of Rabats. With a rich mountain history and a brief period as an independent republic, Labin today combines old and new, history and creativity, tradition and tourism. Near Labine, in a quiet location surrounded by nature, this spacious luxury villa offers a sophisticated lifestyle with an emphasis on modern design and comfort. Built with quality materials, the interior features a carefully selected modern aesthetic, defined by muted tones, creating an elegant, neutral atmosphere, perfectly combined with the modern architecture of the villa.
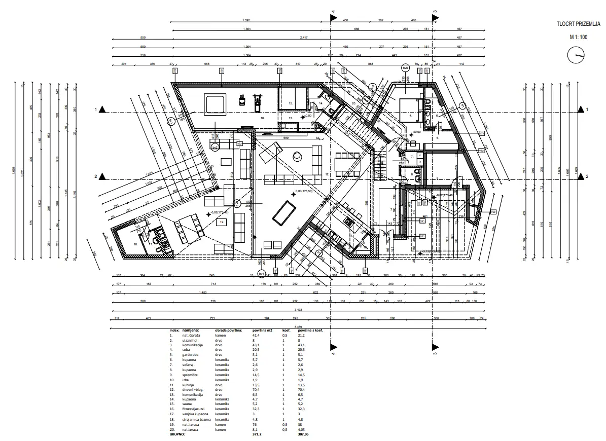
The house occupies 500 m2 on two floors. On the ground floor there is an outdoor living room, kitchen and dining room with direct access to a covered terrace, ideal for outdoor living. This level also includes one bedroom with a bathroom, a recreation and fitness area with a sauna, hot tub, shower and gym, as well as a utility room with laundry and storage space.
On the second floor there are three additional bedrooms, each with a separate bathroom and access to the terrace with panoramic views of the surrounding landscape.
The villa is equipped with a climate control system for heating and cooling, and on the first floor there is a warm polo for additional comfort in the cold months.
The exterior of the villa is also impressive. The beautifully decorated courtyard includes a heated swimming pool of 80 m2, a sunbathing terrace, a fully equipped summer kitchen and a playground, providing all the elements for family holidays or entertainment for guests. Thanks to its generous layout, luxurious amenities and tranquil location, this villa is an ideal choice for those who are looking for comfortable family housing or investment in high-end rentals on the coast of Istria.
When buying a property in Croatia, the buyer incurs additional costs of about 7% of the purchase price: property transfer tax (3% of the value of the property), the agency commission (VAT), the fee of the attorney (VAT), the fee of 1%). The signing of the Agency Agreement (by 3% of the commission + VAT) precedes the display of objects.
Services and facilities
Additional details
Property type
Residential Properties
Object type
Villa
Price
1 905 922 $
Land area
1928
Characteristics
Contact person
Comment

260 м²
Luxury duplex with swimming pool, sauna and Jacuzzi for sale - first-class property in Croatia with modern Mediterranean notes.

308 м²
Modern architectural villa in Rovina for sale - Premium luxury villas in Rovina, Croatia with private swimming pool and...
Our managers will help you choose a property

Liliya
International Real Estate Consultant