Main Countries Buy Rent

Villa 216 м² in Brtonigla, Croatia

1 391 023 $

6 439 $ /м²

4Od1o
Share:

Area

216 м2

Bedrooms

4

Bathrooms

4

Villa in Istria. City - Brtonigla

Villa of modern charm in Nova Vas, Brtonigla, under construction!
Total area is 216 sq.m. Land plot is 1024 sq.m.
Sea and beaches are cca. 9 km from the villa, in Porec outskirts.

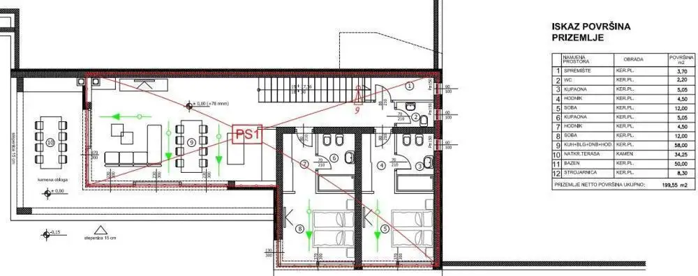
Planning:
On the ground floor there is a living room with a dining room and a kitchen, a toilet, a storage room, two rooms with attached bathrooms and anterooms, and a covered terrace with access to the 50m2 swimming pool and sunbathing area.
On the first floor, there is the main entrance to the house, a hallway and two bedrooms with attached bathrooms, an entrance hall and a balcony.

The net area of the house is: ground floor 141.25 m2 and 1st floor 75.10 m2, i.e. a total of 216.35 m2. The orientation of the house is south.
 
The spaces will be heated by a heat pump, which also serves to cool the premises during the summer months.
Vehicle parking for 3 cars  is provided within the building plot. 

Construction of the house:
The construction elements that make up the house are AB load-bearing walls and brick load-bearing walls 30 cm wide covered with 10 cm thermal insulation, stiffened with horizontal and vertical cerclages. The floor slab is made of 30 cm thick AB concrete with layers of hydro and thermal insulation on stone cobblestones. The mezzanine construction is an AB board with a thickness of 20 cm. Partition walls are brick, 10 cm thick.
Roof construction and cover: The roof is flat reinforced concrete with hydro and thermal insulation and gravel as the final layer.
Finishes: all interior walls and ceilings are planned to be plastered with extension plaster and painted with dispersive paint, bathrooms are lined with ceramics.
Floors: all floors, depending on the purpose, are covered with ceramic or wood.
Carpentry: the external carpentry is an aluminum lock with a broken thermal bridge, glazed with iso glass, the internal carpentry is wooden.
 
Villa size:
20.80 x 12.90 m, height 6.45 m, measured from the finally arranged terrain along the front of the building to the lower edge of the east flat roof of the last floor. The total height of the ridge is 7.25 m. In addition to the basic building, it is planned to build an outdoor uncovered swimming pool with a water surface of 44.16 m2, with a total area of 50 m2.
The swimming pool will be located on the western part of the building plot. The swimming pool will have maximum dimensions of 10.0m x 5.0m (internal water dimensions 9.60 x 4.60m), a depth of 1.5m and a usable area of 44.16 m2. The shell of the swimming pool is made of waterproof reinforced concrete with a thickness of 20.0 cm. In the continuation of the swimming pool, an engine room will be constructed, which will be buried.
 
The villa will be connected to the water supply, electricity and telecommunications networks.
Until the conditions for connection to the public drainage network are created, fecal waste water will be sent to its own bio disk with an absorption well.
 
The purpose of the building is an economic-hospitality-tourist building - villa "A" (P+1) with one residential unit and an outdoor uncovered swimming pool (50.00m2).
Ref: RE-U-20615

Overall additional expenses borne by the Buyer of real estate in Croatia are around 7% of property cost in total, which includes: property transfer tax (3% of property value), agency/brokerage commission (3%+VAT on commission), advocate fee (cca 1%), notary fee, court registration fee and official certified translation expenses. Agency/brokerage agreement is signed prior to visiting properties.

Services and facilities

Pool

Additional details

Property type

Residential Properties

Object type

Villa

Price

1 391 023 $

Land area

1024

Characteristics

Pool

FAQ

In Croatia a residence permit is typically issued based on a minimum investment threshold. Applications are reviewed within 30–60 days in Brtonigla; you will need a passport, proof of funds, and the ownership documents. Hatamatata helps prepare and submit the paperwork.
Banks in Croatia finance 50–70% of the property value for non-residents with rates of 3–5% for 20–30 years. A life insurance policy and a 30–40% down payment are usually required. Terms and programs vary by city and bank.
Expected expenses: transfer tax 0–15%, registration 0.5–2%, notary 0.5–1.5%, agent commission 0–3%. In total 2–20% on top of the purchase price. Exact rates depend on region, property type and programs.
A title search at the land registry of Croatia takes 10–15 business days. You receive ownership, encumbrance and tax clearance certificates. Documents are translated and reviewed by a lawyer before signing.
Yes. Rental income tax is 5–25% depending on the regime. In Brtonigla short-term tourist rentals typically yield 5–8% per year. Municipal permission and income registration are usually required.
Yes. An inspection costs about 0.5–1% of the price (1 391 023 $) and covers structure, utilities and legal status. Hatamatata arranges a qualified engineer with an EN/RU report.
A typical transaction runs 30–90 days, averaging 45 in Brtonigla: due diligence (10–15 days), notarization (5–7 days), registration (10–14 days), residence permit (30–60 days, if needed).

Related sections

Buy in Croatia for 1200000€
Buy villa in Umag 1 391 023 $
6
3

355

> This premium property offer includes a surprisingly spacious coastal estate with a swimming pool for sale in...

Buy in Croatia for 1560000€
Buy house in Porec 1 808 330 $
5
5

320

Translated text (function() {) var editWrapper = document.querySelector('[data-early-paste-detection-id=":R4j9cmqn8ptajqiqpuuqlajsq:"]') var edit = editWrapper.querySelector('[contenteditable]') function notePasted() { if (!edit) return editWrapper.setAttribute('data-early-pasted', 'true')...