Main Countries Buy Rent

Villa 195 м² in Labin, Croatia

765 580 $

3 926 $ /м²

4Od8e
Share:

Area

195 м2

Bedrooms

3

Bathrooms

3

Villa in Istria. City - Labin

Halfway between Pula and Opatija, high above the Istrian coastline, lies the small town of Labin.
In the 1950s and 60s, its medieval core was the center of coal mining. Today, it’s a place where history and modernity blend. The town is known for its charming coves, exquisite gastronomy, and warm, witty locals, making it a favorite destination for visitors from German-speaking countries. A warm welcome is guaranteed here.

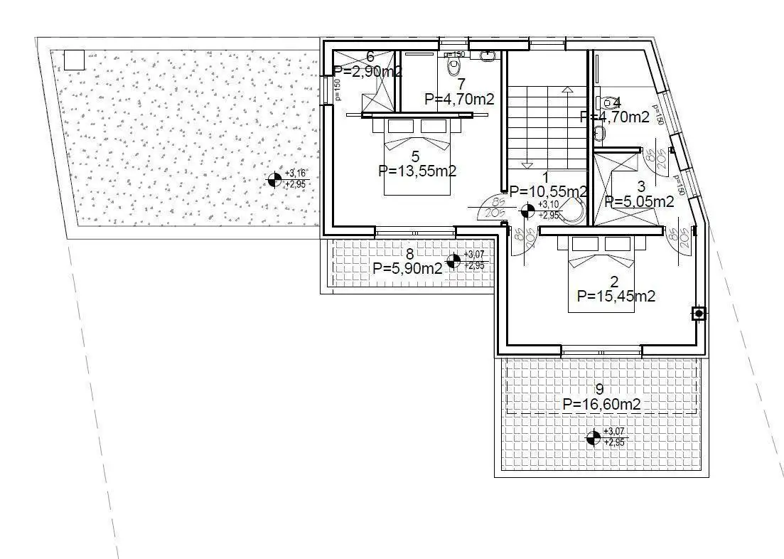
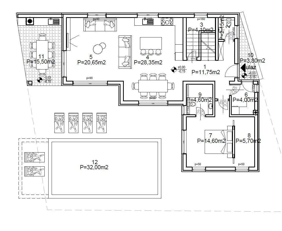
In the outskirts of the town, a beautiful detached house of 195 m² is for sale.
The villa spans two floors. The ground floor features a kitchen, a living room with a dining area, a toilet, a storage room, a bedroom with a walk-in closet and en-suite bathroom, a laundry room, and two outdoor terraces. One terrace will have a summer kitchen, while the other leads to a 32 m² swimming pool.

Upstairs, there are two spacious bedrooms, each with its own bathroom, walk-in closet, and outdoor terrace. The house will be heated with air conditioning and underfloor heating. Currently, the structure is under the roof with carpentry installed, and construction is expected to be completed in early 2024.
The property is being sold on a turnkey basis, including a fully furnished kitchen and appliances.

Land plot around is 995 sq.m.

Given its sought-after location, close to the sea and all amenities, this villa is ideal for tourist rentals or family living.

Ref: RE-U-33379

Overall additional expenses borne by the Buyer of real estate in Croatia are around 7% of property cost in total, which includes: property transfer tax (3% of property value), agency/brokerage commission (3%+VAT on commission), advocate fee (cca 1%), notary fee, court registration fee and official certified translation expenses. Agency/brokerage agreement is signed prior to visiting properties.

Services and facilities

Pool
Air conditioner

Additional details

Property type

Residential Properties

Object type

Villa

Price

765 580 $

Land area

995

Characteristics

Pool
Air conditioner

FAQ

In Croatia a residence permit is typically issued based on a minimum investment threshold. Applications are reviewed within 30–60 days in Labin; you will need a passport, proof of funds, and the ownership documents. Hatamatata helps prepare and submit the paperwork.
Banks in Croatia finance 50–70% of the property value for non-residents with rates of 3–5% for 20–30 years. A life insurance policy and a 30–40% down payment are usually required. Terms and programs vary by city and bank.
Expected expenses: transfer tax 0–15%, registration 0.5–2%, notary 0.5–1.5%, agent commission 0–3%. In total 2–20% on top of the purchase price. Exact rates depend on region, property type and programs.
A title search at the land registry of Croatia takes 10–15 business days. You receive ownership, encumbrance and tax clearance certificates. Documents are translated and reviewed by a lawyer before signing.
Yes. Rental income tax is 5–25% depending on the regime. In Labin short-term tourist rentals typically yield 5–8% per year. Municipal permission and income registration are usually required.
Yes. An inspection costs about 0.5–1% of the price (765 580 $) and covers structure, utilities and legal status. Hatamatata arranges a qualified engineer with an EN/RU report.
A typical transaction runs 30–90 days, averaging 45 in Labin: due diligence (10–15 days), notarization (5–7 days), registration (10–14 days), residence permit (30–60 days, if needed).

Related sections