



















Area
625 м2
Bedrooms
6
Bathrooms
6
A Grand Freehold Villa in the Serene Heart of Pererenan
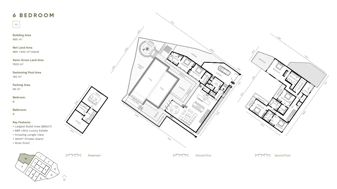
This remarkable villa in Pererenan presents a refined sense of comfort and sophistication, built to accommodate a grand lifestyle. Spanning between 625 to 665 sqm of living space on 594 to 885 sqm of land, it features six spacious bedrooms, each with its own elegant bathroom. The home unfolds across two levels with a basement, offering expansive living areas, a modern kitchen, a large private pool, and a beautifully designed garden that adds a refreshing touch of nature. With additional features such as a private parking area and a dedicated BBQ space, the villa captures the essence of private luxury living in Bali.
Nestled just seven minutes from Pererenan Beach, this villa is surrounded by an atmosphere of calm and sophistication. Within the complex, residents have access to exclusive amenities including a clubhouse with gym, café, and sauna, all designed to enhance a modern tropical lifestyle. The neighborhood itself blends convenience with tranquility — close enough to Canggu’s vibrant social scene, yet far enough to maintain privacy and peace. Every detail has been crafted to create a sanctuary that feels both connected and secluded.
With its strategic location, generous proportions, and refined architecture, this property stands as an exceptional investment opportunity in one of Bali’s most promising areas. Whether envisioned as a family residence or a long-term investment, the villa offers enduring value, combining the grace of modern design with the relaxed rhythm of coastal life — a home that quietly speaks of prestige and timeless comfort.
Only 2 left Unit
Base Price: USD 1,900,000 - 2,500,000/ Freehold
FInal Price After Tax : USD $2,223,000 - 2,925,000/ Freehold
Nestled just seven minutes from Pererenan Beach, this villa is surrounded by an atmosphere of calm and sophistication. Within the complex, residents have access to exclusive amenities including a clubhouse with gym, café, and sauna, all designed to enhance a modern tropical lifestyle. The neighborhood itself blends convenience with tranquility — close enough to Canggu’s vibrant social scene, yet far enough to maintain privacy and peace. Every detail has been crafted to create a sanctuary that feels both connected and secluded.
With its strategic location, generous proportions, and refined architecture, this property stands as an exceptional investment opportunity in one of Bali’s most promising areas. Whether envisioned as a family residence or a long-term investment, the villa offers enduring value, combining the grace of modern design with the relaxed rhythm of coastal life — a home that quietly speaks of prestige and timeless comfort.
Only 2 left Unit
Base Price: USD 1,900,000 - 2,500,000/ Freehold
FInal Price After Tax : USD $2,223,000 - 2,925,000/ Freehold
Services and facilities
Additional details
Property type
Residential Properties
Object type
Villa
Price
1 899 999 $
Land area
594
Characteristics
Infrastructure
Contact person
Comment

Buy villa in Canggu 449 999 $
210
This newly completed villa offers a refined take on modern Bali living in the heart of Batu Bolong, one of...

Buy villa in Canggu 650 000 $
280
This contemporary villa in Batu Bolong offers a refined blend of modern minimalist architecture and subtle Balinese accents, set within...
Our managers will help you choose a property
Liliya
International Real Estate Consultant
