Main Countries Buy Rent

Flat 197 м² in Siska, Slovenia

846 091 $

4 294 $ /м²

4Og51
Share:

Area

197 м2

Year of construction

2025

Apartment in Central Slovenia. City - Shishka

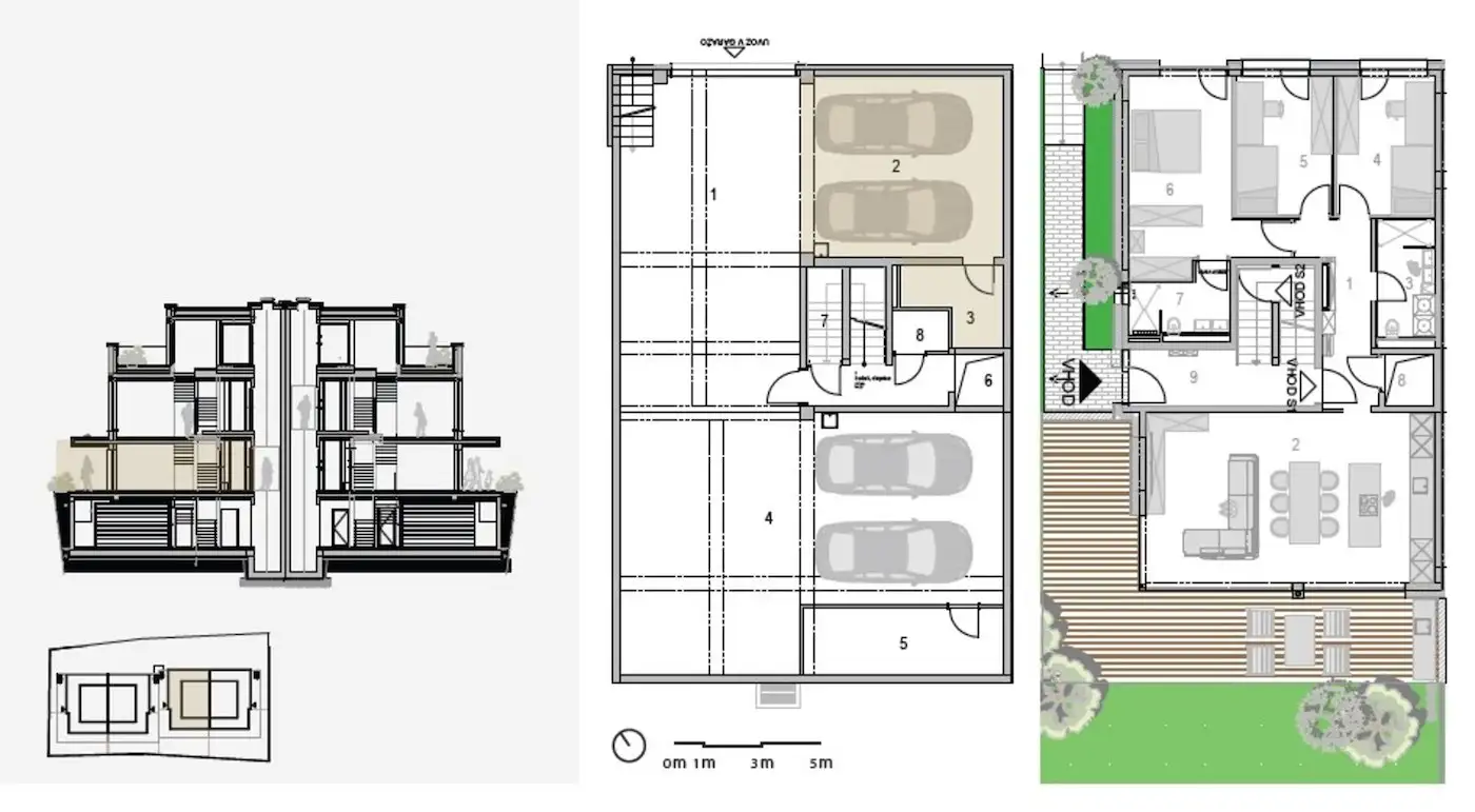
In Podutik, in close proximity to nature, two four-apartment townhouses are being built, in which there will be 8 luxury apartments. The new buildings boast modern architectural design and functional and thoughtful floor layouts. The twin buildings will have multiple floors, K+P+1+T, with ground floor atriums and roof terraces. The atriums and terraces are oriented to the southwest, from where a beautiful view of nature opens. Parking spaces for both blocks are provided in the basement, which also has a pantry for each block.



The apartments will be partially furnished.



In the embrace of a luxurious oasis, where every day begins from the light of modern life and comfort.



We present you a luxurious 4-room apartment that offers the comfort of modern life. The total area is 196.81 m2 + 2 additional Owner’s Parking Locations in the Garage with a total area of 31.57 m2.



Light and space woven into living poetry.



Entering the spacious and bright living room, you will see large panoramic windows through which a lot of sunlight penetrates, filling the dining room, kitchen and living room. You will immediately feel the warmth of the house, where you can relax, admiring the view of the green atrium or open panoramic glass doors and go out to the terrace.

On the first floor from the south-west side there is a residential area: a spacious kitchen with a dining room and a living room with access to a beautiful terrace, flooded with sunlight and with a beautiful view of nature. Separated from the living area for communication Bedroom overlooks the northeast. The apartment has a large bedroom with a dressing room and a separate bathroom, as well as two children's rooms. There is an additional bathroom in the corridor. From the garage to the apartment you can go directly by elevator.



The outer atmosphere is oriented to the southwest, from where a beautiful view of nature opens. There is also the possibility of a summer kitchen.



Modern technologies for a carefree life. The facility uses high-quality materials and advanced technologies:




    Warm floor with DAIKIN heat pump, which also provides cooling in the summer months.
    Ventilation: forced ventilation with heat recovery.
    Smart installations: for easy home management.
  • Electromobile Racing Station: Pre-prepared for subsequent installation.

  • Construction materials: high-quality three-layer windows made of wood / aluminum, external blinds made of aluminum or roll curtains with electric drive. Interior doors will be made of high-quality veneer, and the front door to the apartment will be burglar-resistant and soundproof.


Luxury apartments have excellent access to the center of Ljubljana and at the same time are only 2 minutes away from the ring road and highway. Nearby all the infrastructure - primary school, kindergarten, shop. There is also a city bus stop nearby. This is a great starting point for visiting popular holiday destinations: by bicycle or on foot to Toshko Chelo, walking along the Trail of Memories and other places of recreation and entertainment.




  • First floor: 108.61 m2




  1. Corridor

  2. Living room

  3. The bathroom

  4. Children's room 1

  5. Children's room 2

  6. Bedroom with dressing room

  7. The bathroom

  8. Elevator




  • ATRIUM (green and wood): 80.40 m2

  • Package:




  1.  Garage (2 parking spaces for owners): 31.57 m2

  2. Parkroom: 7.80 m2



This property will be an ideal home for those who appreciate the accessibility of urban life and the tranquility of the environment, but at the same time looking for modern architecture and a high quality of life.



The floor plan is for informational purposes only. Visualizations are exclusively informational in nature and serve to facilitate the visualization of possible space layouts.



Additional transaction costs: commission fee 2%+ VAT.


(PS55599999999888S)

Services and facilities

Garage/parking
Lift
Heating system

Additional details

Property type

Residential Properties

Object type

Flat

Price

846 091 $

Land area

0

Characteristics

Garage/parking
Lift
Heating system

FAQ

In Slovenia a residence permit is typically issued based on a minimum investment threshold. Applications are reviewed within 30–60 days in Siska; you will need a passport, proof of funds, and the ownership documents. Hatamatata helps prepare and submit the paperwork.
Banks in Slovenia finance 50–70% of the property value for non-residents with rates of 3–5% for 20–30 years. A life insurance policy and a 30–40% down payment are usually required. Terms and programs vary by city and bank.
Expected expenses: transfer tax 0–15%, registration 0.5–2%, notary 0.5–1.5%, agent commission 0–3%. In total 2–20% on top of the purchase price. Exact rates depend on region, property type and programs.
A title search at the land registry of Slovenia takes 10–15 business days. You receive ownership, encumbrance and tax clearance certificates. Documents are translated and reviewed by a lawyer before signing.
Yes. Rental income tax is 5–25% depending on the regime. In Siska short-term tourist rentals typically yield 5–8% per year. Municipal permission and income registration are usually required.
Yes. An inspection costs about 0.5–1% of the price (846 091 $) and covers structure, utilities and legal status. Hatamatata arranges a qualified engineer with an EN/RU report.
A typical transaction runs 30–90 days, averaging 45 in Siska: due diligence (10–15 days), notarization (5–7 days), registration (10–14 days), residence permit (30–60 days, if needed).

Related sections